There are a multitude of ways to go about designing your own plastic pipe manufacturing facility. And as with most issues of a certain complexity, there’s not just one ideal route for everyone to take. This decision greatly depends on varying critical aspects that change with each project’s specifics. So here’s some critical information to consider, that we’ve compiled over decades of designing and building plastic pipe production facilities throughout the world.
Specialized Design Considerations
A successful plastic pipe extrusion factory design needs to take into account specialized case conditions. Some of the more obvious technical aspects include required plastic pipe types and size formats (pvc, pp, pe, etc), output capacity, levels of automation, and other basic factory operational specifications. Less obvious but equally – if not more – important factors include the skill level of your locally available workforce, your in-house know-how and experience, the competitive landscape of your target market, and government frameworks that affect your products such as farm subsidies. One thing is certain at this pre-design stage: the more meaningful design inputs you can initially define, the more effective your pipe extrusion facility will become.
Turnkey Factory Design
Both a comprehensive turnkey factory design contract, or an EPC (Engineering Procurement Construction) contract, deliver very similar results. The key with both is that commissioning a company that’s expert in pipe extrusion factories, provides many advantages across the board.
Reliability & Accountability
In a turnkey factory agreement, the contractor is responsible for conducting proper design, and if agreed upon, commissioning, construction, start-up, and hand over of your plastic pipe production facility. This protects you from scope creep, coming over or under budget, and any other type of project setback.
Complexity Management
Even after having defined the design inputs, a lot more goes into designing a pipe extrusion factory. Designing with the help of specialists can help you meet requirements quickly and effectively. But it can also result in optimizing your time, money, and resources, by defining processes and equipment most fit for the job. Moreover, with expert advice you can future proof your design to facilitate easy upgrading or retro-fitting equipment, implement inline QA processes, adding automation equipment, and having redundancies that cover operations in cases of maintenance or facility changes.
Project Management
It’s not uncommon for companies to undertake the design and development of a new pipe extrusion factory in-house, only to discover multiple project management problems down the road, such as under budgeting and delaying completion of tasks. With turnkey factory design, you leverage the decades of experience and know-how of pipe extrusion industry experts. This way you are safeguarded against such issues, which can severely throw off your company’s course.

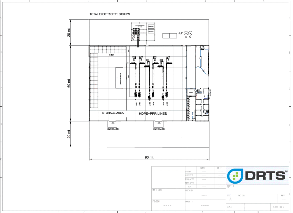
- Sample Plastic Pipe Extrusion Factory Design by DRTS
How Experts Can Help
DRTS has over 35 years experience in 500 different pipe factories, supporting plastic pipe manufacturers of all sizes. A big part of managing pipe extrusion factory design is being able to design and procure equipment and services, from a wide variety of different types of engineering equipment and principles:
Infrastructure:
Infrastructure services are required, in order to build a facility that will meet the production and storage needs of your factory.
Primary Equipment:
Primary mechanical equipment such as chillers needs to be designed, according to the energy requirements of the new pipe extrusion facility.
Pipe Extrusion Lines:
At the heart of every plastic pipe production factory, are its pipe extrusion machines and their supporting equipment, such as dripper inserters, coolers, and coiling machines.
Quality Assurance Equipment:
In plastic pipe extrusion, quality inspection can be conducted either off line in a lab, or inline during pipe manufacturing. The choice depends on your factory’s needs, however there is no better way to design and determine the best solution, than consulting with an expert.
Lab Equipment:
Good factory operation is always complimented by a properly equipped QC lab. So a turnkey pipe extrusion design, also includes laboratory equipment.
Get Help From DRTS
If you have found this article useful, chances are you are at the consideration stages of designing or upgrading your own pipe extrusion and manufacturing facility. If so, don’t miss out on the chance to simplify your life, by getting help from the experts. Reach out and book your free exclusive consultation 111with a DRTS pipe extrusion expert.

More from DRTS
Drip Irrigation: New Trends & Emerging Industries
Round vs Flat Drip Emitters: Which Type Is Right for My Business